GRAVITAS | Na predaj 8 izbový rod. dom v lukratívnej časti - Rača
Ponúkame na predaj 3 - podlažný rodinný dom so suterénom v lukratívnej časti Rače na Popolnej ulici s výhľadom na celú mestskú časť. Dom bol daný do užívania v roku 1995 a skolaudovaný bol v roku 2000. Je pripravený na kompletnú prerábku a jeho...
Neváhajte nás kontaktovať
Chcem si rezervovať obhliadkuĎalšie zaujímavé ponuky
rodinných domov v Rači, Bratislava na predaj
GRAVITAS | NA PREDAJ 5i rekreačný RD | Pekná cesta | Lesopark Rača
Rodinný dom
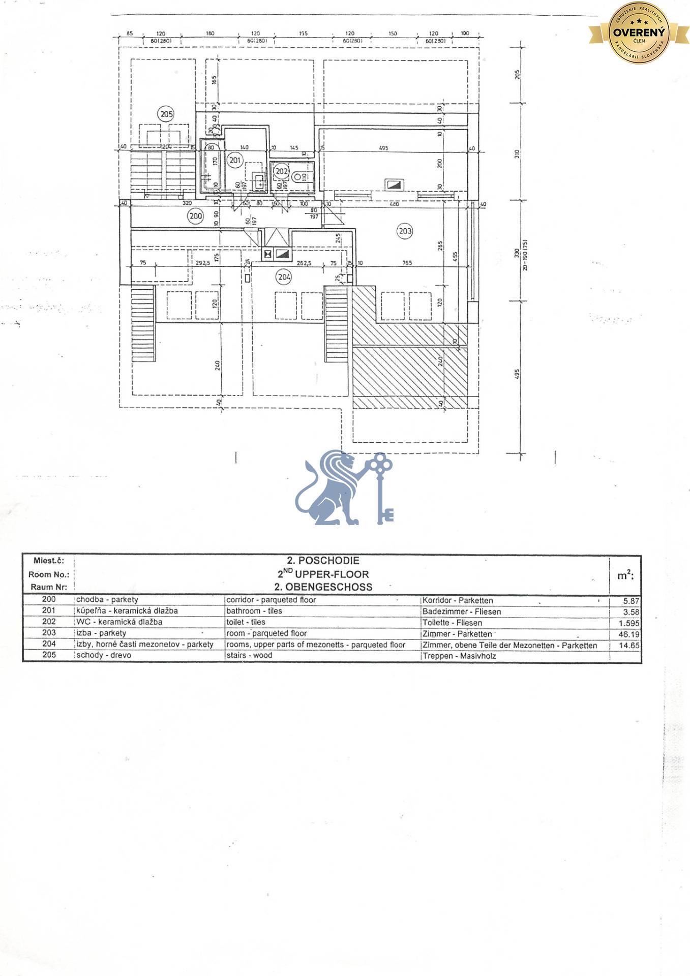
126.2 m²
Pekná cesta
Cena v RK
GRAVITAS | PREDAJ 5i rekreačný RD | Pekná cesta | Lesopark Rača
Rodinný dom
155.7 m²
Pekná cesta
Cena v RK
GRAVITAS | SKOLAUDOVANÉ! Predaj vily v projekte "Račianska perla" (1)
Rodinný dom
169 m²
Pri kolíske
980.000,- €
4233 € / mes.
GRAVITAS | SKOLAUDOVANÉ! Predaj vily v projekte "Račianska perla" (5)
Rodinný dom
169 m²
Pri kolíske
980.000,- €
4233 € / mes.
Poslať ponuku na e-mail
Dohodnúť obhliadku
Chcem získať najvýhodnejšiu hypotéku!
Spolupracujeme s profesionálmi a dokážeme vám vďaka tomu vybaviť najvýhodnejšiu hypotéku, nechajte si zaslať od nás ponuku.
Súhlas so spracovaním osobných údajov
Dotknutá osoba v súlade s príslušnými ustanoveniami zákona č. 18/2018 Z.z. o ochrane osobných údajov a o zmene a doplnení niektorých zákonov v znení neskorších predpisov (ďalej len ,,ZoOOÚ“) potvrdzuje správnosť a aktuálnosť svojich osobných údajov uvedených v kontaktom formulári. Dotknutá osoba týmto čestne vyhlasuje, že udeľuje prevádzkovateľovi svoj výslovný, slobodný, vážny a bezvýhradný súhlas so spracúvaním jej osobných údajov v rozsahu: meno, priezvisko, telefonický kontakt, e-mailová adresa na účel kontaktovania dotknutej osoby ako záujemcu o spoluprácu v informačnom systéme sprostredkovateľa ,,klienti“ počas doby 180 dní od udelenia tohto súhlasu. Dotknutá osoba má právo kedykoľvek odvolať tento súhlas so spracovaním osobných údajov rovnakým spôsobom, akým ho udelila. Odvolanie súhlasu nemá vplyv na zákonnosť spracúvania osobných údajov založeného na súhlase pred jeho odvolaním. Práva dotknutej osoby vymedzujú najmä §§ 19 – 30 ZoOOÚ. Práva a povinnosti sprostredkovateľa, ako prevádzkovateľa, vymedzujú najmä §§ 31 – 46 ZoOOÚ. Dotknutá osoba potvrdzuje, že sprostredkovateľ splnil svoju oznamovaciu povinnosť v rozsahu požadovanom ZoOOÚ. Dotknutá osoba berie na vedomie, že na zabezpečenie toho, že spracúvanie jej osobných údajov sa vykonáva v súlade so ZoOOÚ sprostredkovateľ prijal primerané technické, organizačné a personálne opatrenia zodpovedajúce spôsobu spracúvania osobných údajov, pričom zobral do úvahy najmä použiteľné technické prostriedky, dôvernosť a dôležitosť spracúvaných osobných údajov, ako aj rozsah možných rizík, ktoré sú spôsobilé narušiť bezpečnosť alebo funkčnosť jeho informačných systémov. Sprostredkovateľ bude s osobnými údajmi dotknutej osoby zaobchádzať a nakladať v súlade s platnými a účinnými právnymi predpismi.














